


















Vă propunem spre închiriere un spațiu de birouri amplasat la etajul 2 al unui imobil modern cu regim de înălțime S+P+4E, situat într-o zonă liniștită din Sector 1 cu acces facil la mijloacele de transport în comun, DN1 și Aeroportul Internațional Otopeni.
Caracteristici spațiu:
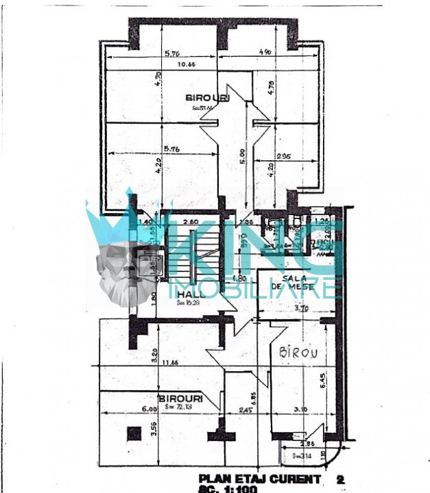
Suprafață totală disponibilă: între 114 și 242 mp, compartimentată inteligent pentru activitate de birou.
Configurație: 8 birouri, kitchinetă, 2 grupuri sanitare, sală de mese.
Posibilitate de închiriere integrală (etaj în folosință exclusivă) sau parțială, pentru doi chiriași (114 mp și 128 mp utili brut). Zonele comune – kitchineta, băile și sala de mese – vor fi utilizate în comun în acest caz.
Inclus: garaj de 30 mp la subsol, utilizabil și ca spațiu de depozitare.
Facilități și dotări:
Finisaje moderne: placare cu granit, suprafețe vitrate ample.
Centrală termică proprie, aparate de aer condiționat în fiecare spațiu.
Sistem de control acces și circuite de senzori de fum și gaz în zonele tehnice și garaj.
Clădire întreținută profesional, cu administrare asigurată de firmă specializată (contract separat).
Utilități (energie electrică, gaze) contorizate individual, achitate conform consumului și cotei părți.
Condiții financiare:
Chirie lunară: între 10–12 Euro/mp (fără TVA, imobil deținut de persoană fizică), în funcție de suprafața închiriată.
Chirie lunară garaj: 200 Euro.
Avans: 2 luni (chiria lunii în curs + o lună garanție).
Performanță energetică:
Clasa energetică: A
Consum anual specific de energie: 85,23 kWh/mp/an
Indice emisii CO₂: 11,79 kgCO₂/mp/an
Energie din surse regenerabile: 0 kWh/mp/an
Acest spațiu este ideal pentru companii care caută un mediu de lucru profesionist, bine conectat, într-un imobil eficient energetic și bine întreținut.
Pentru informații suplimentare sau programarea unei vizionări, vă rugăm să ne contact
Agent Purcaru Stefan