



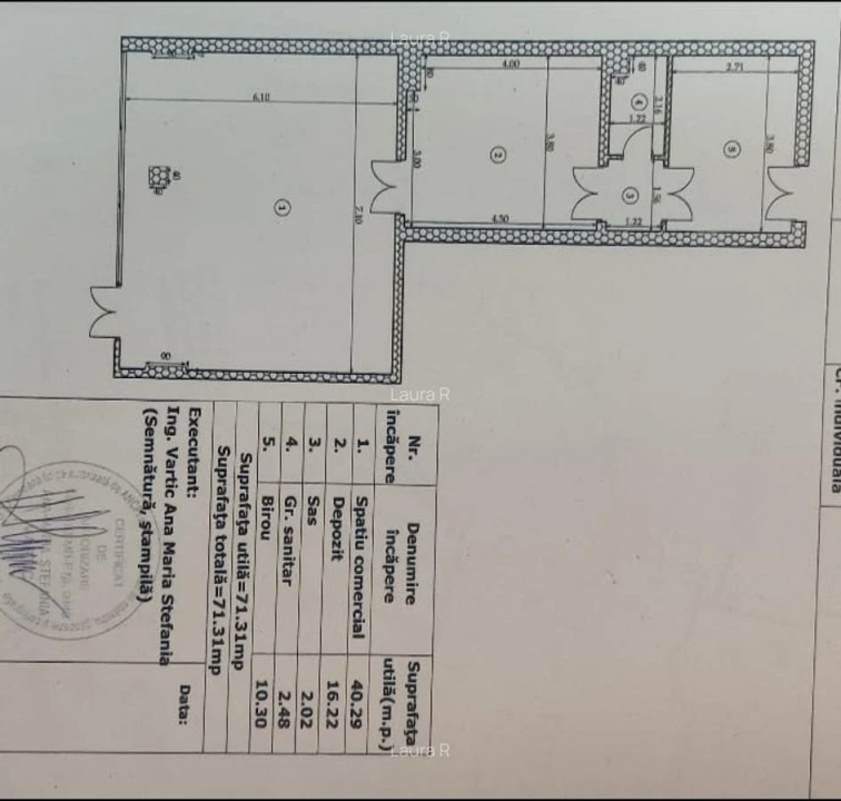
Spațiu comercial de închiriat – 72 mp – Acces stradal – Bd. Aerogării
Oferim spre închiriere un spațiu comercial cu suprafața de 72 mp, situat pe Bulevardul Aerogării, într-o zonă cu trafic pietonal și auto intens. Spațiul beneficiază de acces direct din stradă, ceea ce îi conferă vizibilitate excelentă și ușurință în acces pentru clienți.
Caracteristici principale:
Suprafață utilă: 72 mp
Acces stradal direct
Fațadă vizibilă – ideală pentru branding și expunere
Potrivit pentru:
Magazin de tip retail
Salon de înfrumusețare (coafor, frizerie, cosmetică)
Showroom de dimensiuni mici
Spațiul este ideal pentru antreprenori care doresc să-și dezvolte afacerea într-o zonă bine conectată și căutată din București.
Taxa de serviciu perceputa de KING IMOBILIARE este de 50% + TVA din valoare unei luni de chirie
Agent:Enache Daniel