


ID Anunt :P73867
Comisionul perceput de KING IMOBILIARE este de 50% + TVA din valoare unei luni de chirie.
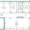
KING IMOBILIARE va propune spre INCHIRIERE un Spatiu industrial cu ? camere , complet mobilat si utilat in zona “ Berceni -Piata Sudului ”
Spatiu de Industrial are o suprafata de 700 mp si este compartimentat in 4 camere, 2 de depozitare si 2 de productie.
Va asteptam sa il vedem impreuna !
Agent:Purcaru Stefan