







Taxa de serviciu percepută de KING IMOBILIARE este de 3% + TVA din valoarea prețului de vânzare.
KING IMOBILIARE vă propune spre vânzare un teren intravilan situat în cartierul Andrei Mureșanu, una dintre cele mai exclusiviste și liniștite zone ale orașului, unde ofertele sunt extrem de rare.
Locație premium – teren retras 30 m de la strada principală, accesibil prin drum privat, ceea ce oferă intimitate și un cadru liniștit pentru viitorii proprietari.
Detalii teren:
Suprafață: 492 mp
Dimensiuni: Front stradal 18 ml | Adâncime 28 ml
Teren drept și împrejmuit
Situație juridică:
Proprietate cu acte în regulă
Extras de Carte Funciară
Certificat de Urbanism valabil
Încadrat în UTR Liu
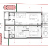
Autorizație de construire în curs de obținere pentru duplex – proiect realizat de Grama Design.
Indicatori urbanistici:
POT (Procent de Ocupare a Terenului): 35%
CUT (Coeficient de Utilizare a Terenului): 0,9
Regim de înălțime maxim permis: S(D) + P + E + M(Er)
Înălțime maximă: 12 m de la cota 0
Utilități disponibile pe teren:
Apă
Gaz
Curent electric
Canalizare
Va asteptam sa il vedem impreuna ! Agent: Sandor Aris